Bij XOOMlab draaien we voor 3D BIM onze hand niet om! Dat wil zeggen, als er een Building Information Model gemaakt moet worden vragen we dat aan onze XOOMlab-collega Sander Bader. Hij maakt een 3D-model waar de aannemers en adviseurs alle data uit kunnen halen, zorgt ervoor dat het tekenwerk perfect in elkaar steekt en het proces vlot verloopt.
Wie is Sander Bader?
Ik woon al vanaf mijn vijftiende in Wilnis. Helemaal gelukkig in mijn zelf verbouwde huis met mijn vriendin en twee kinderen.

Zonder me bewust te zijn waar ik aan begon koos ik op de LTS voor Bouwkunde. Daarna volgde de MTS, de HTS en ik heb 1 dag op de Technische Universiteit in Delft gezeten om te ontdekken dat ik klaar was met studeren en wilde werken. Een week later begon ik bij ZZDP architecten waar ik vijf jaar lang veel kantoren heb uitgewerkt. Dat was een leerzame en leuke periode. Daarna volgde Inbo waar de werkzaamheden meer gericht waren op woningbouw. In het begin nog als bouwkundig tekenaar, maar al vrij snel in de rol als projectleider. In deze periode heb ik de regelgeving rondom het bouwen van woningen onder de knie gekregen.
Hoe ben je BIM-specialist geworden?
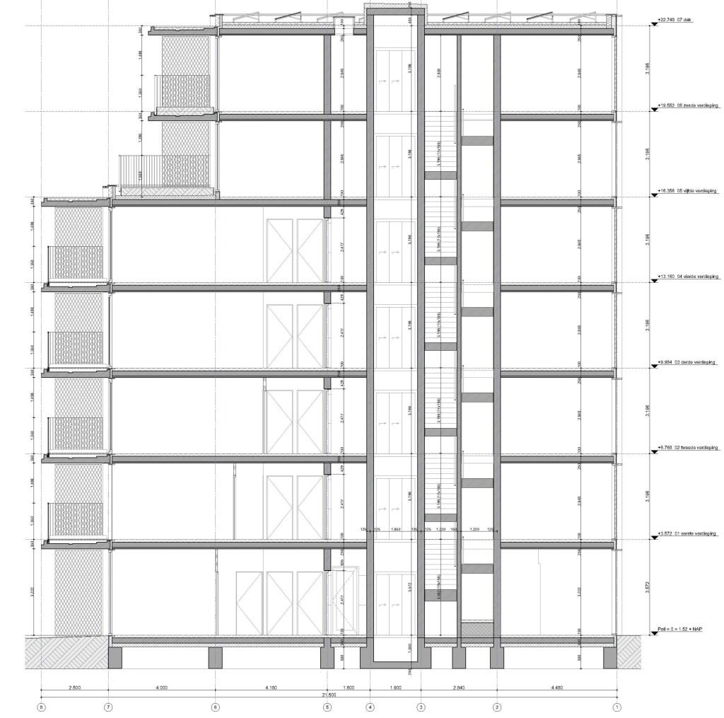
Toen ik voor mezelf begon dertien jaar geleden kwam het BIM-tekenwerk op. Ik dreigde de boot te missen maar voor het project Black Jack kwam er een kans. Mijn toenmalig XOOMlab-collega Jeroen Snel werkte met ArchiCAD. Wij gingen samen aan de slag. We leerden tijdens het uitwerken van het project en volgden enkele cursussen via Kubus, onze software-leverancier. Black Jack werd gebouwd met CD20, een prefab-bouwsysteem wat zich natuurlijk uitstekend leent om een geheel project in 3D te modelleren.

(ism BNB, BO6, Joost Vorstenbosch en Harvey Otten)
Bij volgende projecten werd dat nog veel intensiever. Voor High End Buiksloterham werkten we met het BIM-team van Vink Bouw. Tijdens de bouwvoorbereiding van die 16 High End appartementen communiceerden we via het BIM-model, met BIM-Collab Zoom.
Kort daarna tekende ik voor Ted Schulten Architecten het project IVY in Nieuwegein. Samen met Jeroen Snel deed ik het vergunningentraject en samen met Dennis van Ombergen hebben we de 99 woningen in een toren van 13 lagen technisch uitgewerkt. Ieder project leren we dankzij de samenwerking weer bij.
Wanneer is jouw werk geslaagd?
Voor mij persoonlijk als er een mooie set tekeningen ligt. De 2D-output van de 3D-modellen zie ik als een schilderij. De plattegronden en de gevels netjes onder elkaar. Dat het blad mooi gevuld is en vanzelf je oog valt op wat belangrijk is. Alle principedetails in een logische volgorde. Dankzij het 3D tekenen kunnen we daar ook technische impressies aan toevoegen. Dat maakt de tekening nog helderder en geeft de mogelijkheid om nog meer informatie toe te voegen.

De doelstelling van dat tekenwerk is dat de bouw vlekkeloos verloopt omdat je van tevoren alles al op elkaar afgestemd hebt en alles al een keer hebt onderzocht. Een uitwerking in 3D is daarin tegenwoordig niet meer weg te denken. Constructeur, installateur, onderaannemers en leveranciers werken onderdelen van het gebouw uit binnen de kaders die wij meegeven en zo ontstaat er een ‘As Built model’.
Uiteindelijk moet het project natuurlijk voor iedereen een succes worden. Voor de opdrachtgever, voor de aannemer, voor het hele bouwteam en voor het ontwerpteam.

Waar heb je het afgelopen jaar aan gewerkt?
Vlak voor de zomer heb ik samen met Dimitri Langereis de tekeningen voor de omgevingsvergunning van het project Kickstart Alphen gemaakt dat mijn collega Harvey Otten heeft ontworpen en mede-ontwikkeld. Eerdaags start daarvan de technische uitwerking.
Tussendoor werk ik aan diverse opdrachten voor particulieren. Dit zijn veelal kleinere vergunningsaanvragen of de technische uitwerking en begeleiding van nieuwbouwhuizen. Vlak bij huis heb ik meegewerkt aan de complete vernieuwing van een vrijstaande woning in Mijdrecht.

Verder ben ik trots op de prachtige details die we voor een woning in Amersfoort Lichtenberg met Dirk Jan van Wieringhen Borski hebben bedacht.

Wat is het voordeel van BIMmen in XOOMlab?
Mijn XOOMlab-collega’s ontwikkelen en ontwerpen. Doordat ik mijn kennis van het modelleren met 3D-BIM daaraan toevoeg houden we het proces tot aan de oplevering in de hand. We zitten hier met ontwerpers en BIM-modelleurs naast elkaar. Zo leren we van elkaar wat we belangrijk vinden en dat zie je terug in het product dat we leveren.
dit interview is deel van een reeks gesprekken met leden van de coöperatie XOOMlab. Lees ze allemaal via deze link.